
Banquet in Billings
Redesigning a kitchen, bringing a vision to life
Kristy Ferguson | Beyond the Box
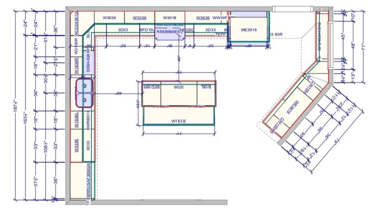
What happened when a small and dark kitchen that lacked functionality got into the hands of Beyond the Box designer Ragan Yetley? The transformation not only brought the owner's vision to life, but it opened up the kitchen with a light and airy feel that the homeowners absolutely love.
The client's passion for baking and the need for a conducive space were key factors in the redesign. After reviewing inspiration photos and talking about needs and wants, Ragan took charge of the design process, incorporating some essential elements. One of the client's must-haves was an island specifically designed for rolling out dough. Additional storage and glass cabinetry were also desired. To create a sense of spaciousness, the cabinetry was extended all the way to the ceiling, giving the illusion of a higher ceiling. The addition of glass doors with interior lighting not only brightened the space but also added depth, making it feel larger.


To address the lack of storage in the original kitchen, a larger pantry with rollouts was incorporated. This provided the necessary storage space that was previously missing. The inclusion of a knife utensil pullout and spice rack on each side of the range ensured that essential items were easily accessible but kept off the countertop.
Another noteworthy feature in this kitchen is the beverage buffet. Not only does it fulfill the need for additional storage, but it also serves as a grand piece of art, adding a touch of elegance to the space.

One particularly appealing aspect of the kitchen design is the integration of the island with the dining seating. The banquette was carefully chosen to fit both the form and function of the space, creating a seamless and visually appealing transition between the kitchen and dining areas.
Overall, the changes made to this kitchen have resulted in a more functional, brighter, and aesthetically pleasing space. The client's love for baking is now supported by a well-designed kitchen that meets their needs and enhances their overall experience.

A banquette, or a built-in seating area, can offer several benefits to clients who want to incorporate it into their kitchen design. Here are some reasons why a client might choose to have a banquette in their kitchen:
- Space optimization: Banquettes are an excellent way to maximize space utilization in a kitchen. They are typically designed to fit snugly into a corner or along a wall, making efficient use of available space. By eliminating the need for individual chairs and tables, a banquette can create more seating capacity in a smaller area.
- Increased seating options: Banquettes provide ample seating for family members, guests, and even larger groups. Compared to traditional chairs, banquettes can accommodate more people comfortably, allowing for a greater number of individuals to gather and dine together.
- Cozy and intimate atmosphere: Banquettes create a warm and inviting atmosphere in the kitchen. With their enclosed design and cushioned seating, they can make the space feel more intimate and cozier. This setup encourages people to relax, engage in conversations, and spend quality time together.
- Storage integration: Many banquettes are designed with storage options built into them. This project is integrated with the island and then has storage drawers underneath the seating.
- Aesthetically pleasing: Banquettes can enhance the overall aesthetics of a kitchen. The addition of a banquette can introduce visual interest and uniqueness to the kitchen, creating a focal point or a statement piece.